Téléphone
  Expertise
  Contactez-nous
  Téléphonez-nous
  Tenez-moi au courant
Facebook  
Instagram  
 4450 JUPRELLE
405 000 €

Maison 3/4 chambres avec garage et jardin

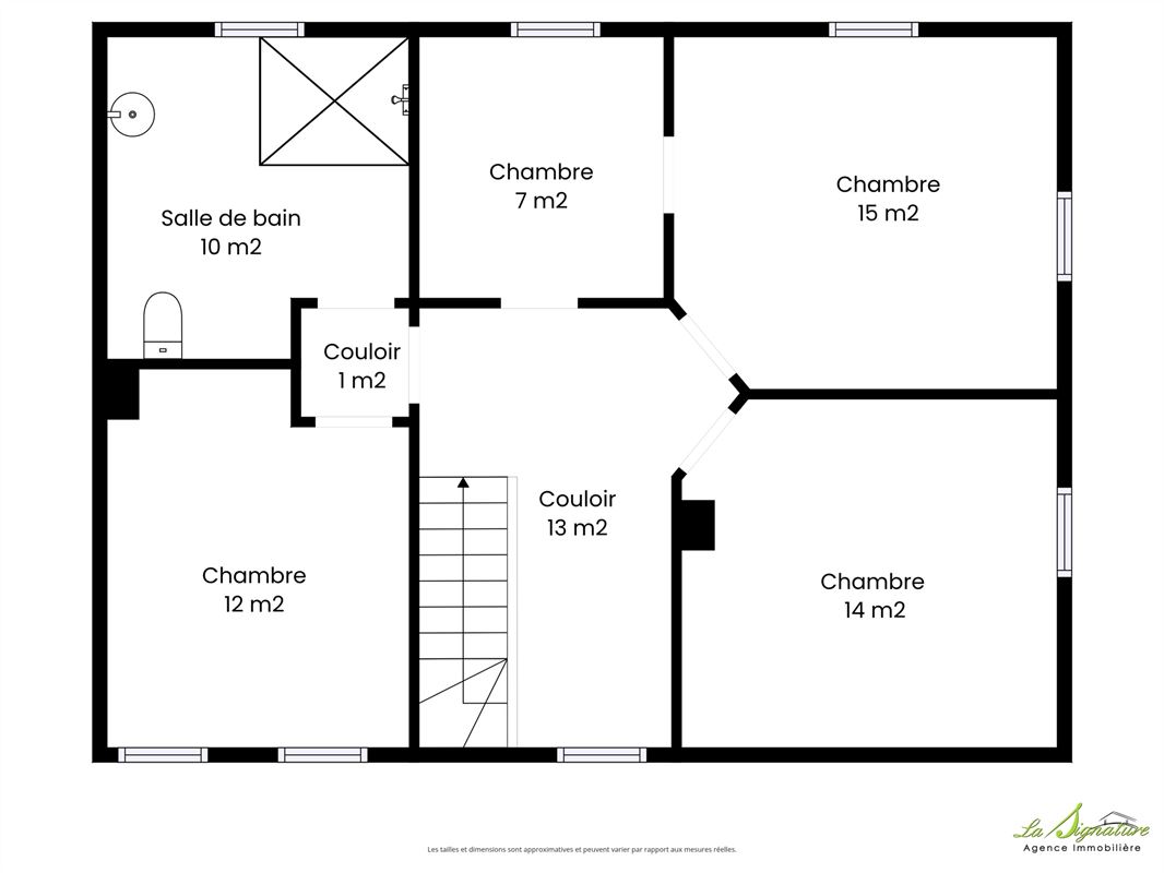
La Signature Immobilière vous présente cette maison 3 chambres avec garage et jardin - Cette habitation idéalement située à Slins vous offrira un cadre de vie agréable à la campagne tout en étant proche de toutes commodités - Construite en 2008, cette maison se compose comme suit : REZ-DE-CHAUSSÉE : Hall d’entrée avec toilette - Spacieux séjour de 32m² avec accès au jardin - Cuisine équipée - Garage avec accès à la cave - PREMIER ÉTAGE : Hall de nuit - Chambre 1 (14m²) - Chambre 2 (15m²) - Chambre 3 (12m²) - Chambre 4 ou dressing (7m²) - Salle de bain (douche, double évier et toilette) - DIVERS : CC mazout - Double vitrage PVC - 14 panneaux photovoltaïques - PEB : B n°20251125025864 - Adoucisseur d'eau - Abri de jardin - Porte de garage électrique - Carport - A VOIR - N’hésitez pas à nous contacter au 0498/979.864
Revenu cadastral
 855 €
Nombre de chambre(s)
 3
Nombre de salle(s) de bain
 1
Garage(s)
 1
Adresse
 Route Provinciale 696
4450 JUPRELLE

Général

Superficie habitable
170 m²
Superficie living
32.5 m²
Superficie totale
80 m²
Superficie terrain
800 m²
Largeur terrain
15 m
Année de construction
2008

Confort/Equipements

Chauffage
C.C. au mazout
Orientation façade arrière
Est
Type de toit
Toit en mansarde
Couverture de toit
Tuiles
Cuisine
Entièrement équipée
Vitrage
Double
Type de vitrage
pvc
Confort extérieur
Fosse septique + égouts (système mixte)
Destination
Non

Composition

  • Hall d'entrée:10 m2
  • Living:32 m2
  • Cuisine:13 m2
  • Garage:23 m2
  • Hall de nuit:10 m2
  • Chambre à coucher 1:15 m2
  • Chambre à coucher 2:15 m2
  • Dressing:7.3 m2
  • Chambre à coucher 3:12 m2
  • Salle de bains 1:12 m2

Informations transmises sous réserve d’erreurs et non contractuelles.

Certificat energétique

PEB n°
20251125025864
E spec
148 kWh/m² par an
E total
25751 kWh/an
Emission CO2
36 Kg co2/m² par an



Informations financières

Héritages
Non

Street view

Google map