Téléphone
  Expertise
  Contactez-nous
  Téléphonez-nous
  Tenez-moi au courant
Facebook  
Instagram  
 4920 HARZÉ
429 000 €

OPTION! EN ATTENTE DE SIGNATURE DE COMPROMIS DE VENTE

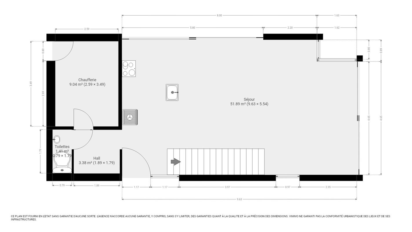
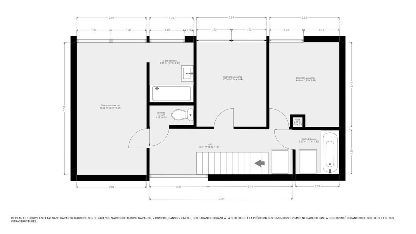
OPTION! EN ATTENTE DE SIGNATURE DE COMPROMIS DE VENTE! La Signature Immobilière vous propose à la vente cette magnifique maison 4 façades très lumineuse, construite en 2019, située dans un endroit calme. Elle se compose comme suit: Rez-de-chaussée: un grand séjour reprenant salon, salle à manger et cuisine équipée (four, taque induction, hotte, évier), un vestiaire, une buanderie, une toilette indépendante. 1er étage: un halle de nuit, 3 chambres dont une avec a salle de bains privative (douche italienne, évier), une seconde salle de bains (baignoire, évier). Ce bien lumineux sur un terrain de 962m² vous conviendra parfaitement. Divers: électricité conforme, PEB B 20250319507932 châssis Aluminium double vitrage, chauffage central au gaz, emplacements de parking extérieur,VMC double flux, pour une visite ou une question, n'hésitez pas à nous contacter au 04/223.30.30 ou WWW.LASIGNATURE.BE
Revenu cadastral
 820 €
Nombre de chambre(s)
 3
Nombre de salle(s) de bain
 2
Adresse
 Chemin de la Fontaine Cadet 3
4920 HARZÉ

Général

Superficie habitable
120 m²
Superficie living
51.89 m²
Superficie totale
120 m²
Superficie terrain
962 m²
Largeur façade
12.31 m
Année de construction
2019

Confort/Equipements

Chauffage
C.C. au gaz
Orientation façade arrière
Est
Type de toit
Toit en mansarde
Couverture de toit
Tuiles
Cuisine
Américaine semi-équipée
Vitrage
Double
Type de vitrage
alu

Composition

  • Séjour:51.89 m2
  • Buanderie:90.14 m2
  • vestiaire:3.38 m2
  • Toilette 1:1.41 m2
  • Hall de nuit:10.74 m2
  • Salle de bains 1:3.2 m2
  • Salle de bains 2:4.35 m2
  • Chambre à coucher 1:15.28 m2
  • Chambre à coucher 2:9.77 m2
  • Chambre à coucher 3:9.46 m2
  • Toilette 2:1.41 m2

Informations transmises sous réserve d’erreurs et non contractuelles.

Certificat energétique

PEB n°
20250319507932
E spec
102 kWh/m² par an
E total
15478 kWh/an
Emission CO2
25.01 Kg co2/m² par an



Informations financières

Héritages
Non

Street view

Google map